Raumhaus
Umnutzung einer Scheune zu gemeinschaftlichem Wohnungsbau in Lüdersen


Ort
Kategorie
Auftraggeber:in
Zeitraum
Status
Lüdersen, NI
Wohnen
raumhaus eG
seit 2022
Genehmigungsplanung

Besonders innovativ und nur realisierbar ist das Projekt aufgrund einer Zusammenarbeit mit der TU Braunschweig, die durch ein Forschungsprojekt am Bau beteiligt ist und einen Teil der Finanzierung durch Fördergelder vom Bund mitträgt. Im Rahmen des Projekts werden alle Innenwände des zukünftigen Wohnhauses aus Stampflehm hergestellt. Das innovative an dieser – eigentlich sehr traditionellen – Bauweise ist, dass der Lehm in Lüdersen nicht händisch, sondern von einem Roboterarm gestampft wird. Das Team von der TU hat diese Methode entwickelt und führt im Raumhaus ein erstes Pilotprojekt durch. Das Ergebnis ist deutlich präziser als eine Herstellung mit üblichen Methoden und kann so deutliche Materialersparnis bei gleichbleibender Stabilität hervorbringen. Besonders nachhaltig daran ist nicht nur die Nutzung eines natürlich vorkommenden Materials an sich, sondern auch der regionale Bezug direkt vom Grundstück.
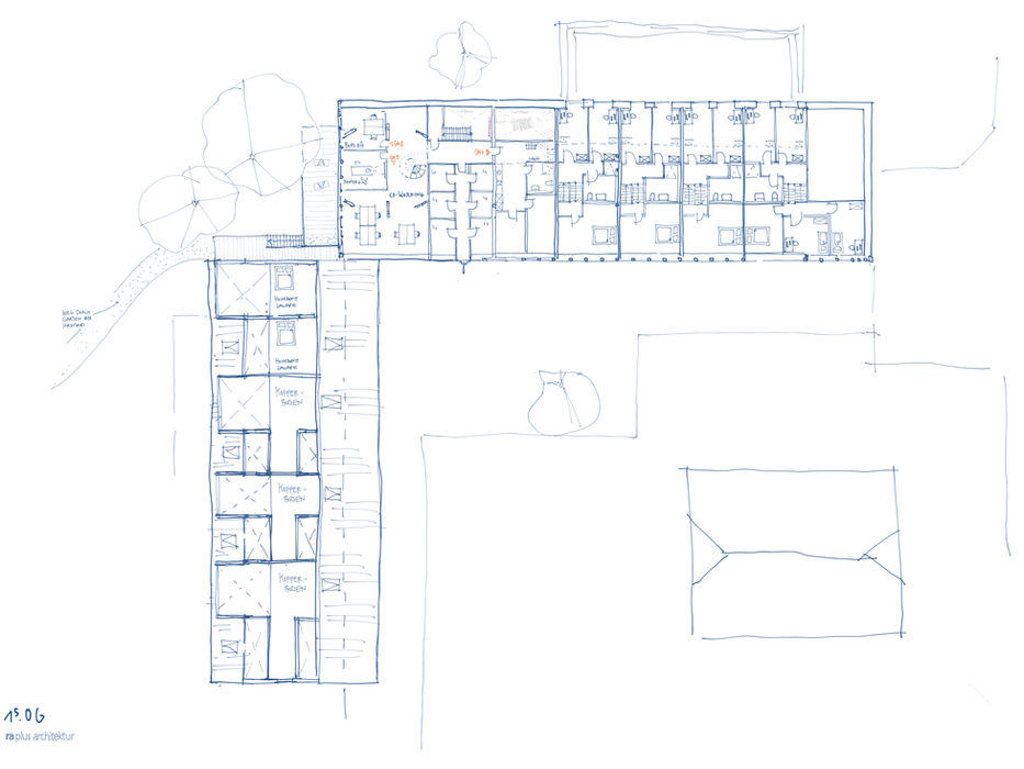
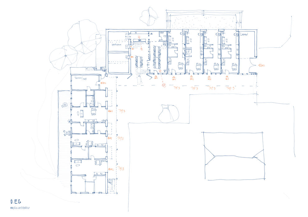
Für die gemeinwohlorientierte Genossenschaft "Raumhaus eG" haben wir die Transformation zweier nicht mehr genutzter Scheunen geplant. Der historische Gebäudebestand wird in ein generationsübergreifendes Wohnprojekt mit 12 Wohneinheiten und gemeinschaftlich genutzten Räumen umgewandelt. Im intensiven Austausch mit der Baugruppe wurden für die zwei unterschiedlich konstruierten Bestandsscheunen entsprechend passende Wohn- und Erschließungskonzepte entwickelt. Der Fokus im Entwurf liegt dabei auf einem bewussten Umgang mit dem ortsbildprägenden Bestand und dessen Funktionsweisen. Durch eine hohe Varianz, flexible Grundrisse und natürliche Materialien aus dem lokalen Umfeld entsteht eine nachhaltige und resiliente Architektur.























